Attraktive Gewerbefläche in Waldbronn - vielseitig nutzbar auf zwei Ebenen
Objektart
Adresse
Objektdaten
Informationen
Ausstattung
Details
Attraktive Gewerbefläche in Waldbronn - vielseitig nutzbar auf zwei Ebenen
In gefragter Lage von Waldbronn präsentiert sich diese großzügige Gewerbefläche als ideale Gelegenheit für Unternehmen, Dienstleister oder Kapitalanleger, die Wert auf Funktionalität, Sichtbarkeit und ein angenehmes Arbeitsumfeld legen. Die im Jahr 1980 errichtete Immobilie verbindet einen soliden Gebäudebestand mit vielseitigen Nutzungsmöglichkeiten und bietet beste Voraussetzungen für eine erfolgreiche gewerbliche Nutzung.
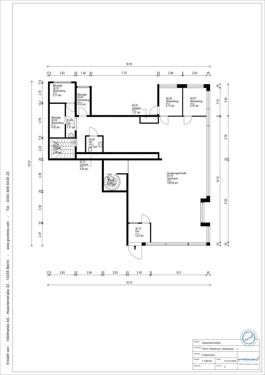
Auf insgesamt ca. 329,43 m² Grundfläche stehen Ihnen gut nutzbare Räumlichkeiten zur Verfügung, die sich auf Erdgeschoss und Untergeschoss verteilen. Dadurch eröffnet sich ein breites Spektrum an Nutzungsmöglichkeiten - ob als Büro, Praxis, Dienstleistungsfläche oder für andere gewerbliche Konzepte.
Im Untergeschoss befinden sich zusätzliche Räume, die sich flexibel und individuell an verschiedene Anforderungen anpassen lassen und somit die funktionale Nutzbarkeit der Gesamtfläche sinnvoll ergänzen.
Die Fläche überzeugt durch ihre durchdachte Aufteilung, ein angenehmes Arbeitsumfeld und die Möglichkeit, betriebliche Abläufe effizient zu organisieren. Gleichzeitig bietet der Standort in Waldbronn ein attraktives Umfeld mit guter Erreichbarkeit sowie einer gewachsenen Infrastruktur, von der sowohl Mitarbeitende als auch Kundschaft profitieren.
Ein weiterer Vorteil ist die kurzfristige Verfügbarkeit der Einheit, sodass einer zeitnahen Nutzung nichts im Wege steht. Diese Gewerbefläche bietet damit eine hervorragende Perspektive für Eigennutzer ebenso wie für Investoren, die auf einen Standort mit Potenzial setzen.
- Brutto-Grundfläche: ca. 329,43m²
- Flächenverteilung auf Erdgeschoss und Untergeschoss
- Baujahr 1980
- Gewachsenes Umfeld mit vorhandener Infrastruktur
- Diverse Räume zur Nutzung im Untergeschoss
Verbrauchsausweis: Erdgas, Endenergieverbrauch Wärme 75,1kWh/(m²*a), Endenergieverbrauch Strom 59,3 kWh/(m²*a), D
Die Gewerbefläche befindet sich in einer attraktiven Lage im Herzen von Waldbronn, einer charmanten Gemeinde in Baden-Württemberg. Diese Region zeichnet sich durch ihre naturnahe Umgebung aus, die sowohl von Einheimischen als auch von Geschäftstreibenden geschätzt wird. Die zentrale Lage bietet eine hervorragende Anbindung an das regionale Verkehrsnetz, was sowohl den öffentlichen Nahverkehr als auch die Zufahrt mit dem Auto erleichtert. Diverse Einkaufsmöglichkeiten, gastronomische Einrichtungen und Dienstleistungen sind bequem in kurzer Distanz erreichbar, was die Attraktivität für Mitarbeiter und Geschäftspartner gleichermaßen erhöht. Die nahe gelegene Infrastruktur und die angenehme Arbeitsumgebung tragen dazu bei, dass dieser Standort ideal für Unternehmen ist, die Wert auf Zugänglichkeit und ein entspanntes Ambiente legen.
Es liegt ein Energieverbrauchsausweis vor.
Dieser ist gültig bis 29.7.2032.
Endenergieverbrauch beträgt 75.10 kwh/(m²*a).
Wesentlicher Energieträger der Heizung ist .
Das Baujahr des Objekts lt. Energieausweis ist 2004.
Die Energieeffizienzklasse ist D.
Die Verhandlungen und Bemühungen vor Vertragsabschluss sind kostenfrei. Kommt ein Kaufvertrag zustande, hat der Käufer am Tage des Vertragsabschlusses eine Vermittlungs- bzw. Nachweisprovision in Höhe von 3,57% inkl. MwSt., aus der Kaufsumme zu bezahlen.
Alle Angaben erfolgen im Auftrag des Eigentümers, Irrtum und Zwischenverkauf vorbehalten. Die Volksbank Immobilien AG ist berechtigt, auch für den Verkäufer dieser Immobilie gegen Entgelt tätig zu werden.
Haus, Wohnung, Baugrundstück oder Mehrfamilienhaus; das Team der Volksbank Immobilien AG steht für eine sichere, diskrete und schnelle Abwicklung. Wir beraten Sie gerne bei der Marktwerteinschätzung Ihrer Immobilie und unterstützen Sie gerne bei der Finanzierung Ihres Wunschobjektes.
Weitere Angebote und Services finden Sie auf unserer Homepage.
Energieausweis (Verbrauchsausweis)
75,10 kWh / (m²*a) Energieverbrauchskennwert
75,10 kWh / (m²*a) Energieverbrauchskennwert
75,10 kWh / (m²*a) Energieverbrauchskennwert
Weitere Informationen
| Energieausweis Ausstelldatum | 2022-07-29 |
| Energieausweis gültig bis | 2032-07-29 |
| Energieausweis Jahrgang | ab dem 1.5.2014 |
| Energieausweis Stromwert | 59.30 kWh / (m²*a) |
| Energieausweis Wärmewert | 75.10 kWh / (m²*a) |
| Energieausweis Werteklasse | D |
| Energieausweis Baujahr | 2004 |
| Energieausweis Gebäudeart | Gewerbe |
Ich bin damit einverstanden, dass mir Karten von Google angezeigt werden. Es gelten die Datenschutzbedingungen von Google (https://policies.google.com/privacy).
Ich bin einverstanden